UV lampa srednjeg pritiska
Ulaz/izlaz: DN50(2″)-DN250(10″)
Životni vijek lampe: 9000 sati
UV prijenos: 80–100%
Protok: 15 m³/h - 535m³/h
Vrsta lampe: Agua Topone UV lampa srednjeg pritiska
UV lampa srednjeg pritiska:Pogodan je za bazene na sobnoj, niskoj i visokoj temperaturi. Ima snažnu sposobnost dezinfekcije i može ubiti mikroorganizme koje je teško ubiti kao što je Cryptosporidium. Može dobro eliminirati zaostali ozon i kombinirani klor u vodi i ima dobru sterilizaciju sposobnost. Prednost je u tome što ne treba strojarnicu, radni trošak je niži nego kod ozona, a rad je također vrlo jednostavan, ali u usporedbi s ozonom, nema učinka flokulacije.
PREDNOSTI UV lampe srednjeg pritiska
1. Široki germicidni spektar napada različite dijelove mikroorganizama i uništava njihove mehanizme popravka.
2. Ne postoji opasnost od popravka mikroorganizama koji bi ugrozili biosigurnost vode u vašem objektu.
3. Prednost široke germicidne valne duljine: više alata za dovršetak posla!
Učinkovitiji u inaktivaciji virusa
1. Koristi mnogo manje UV energije od niskotlačnih sustava za inaktivaciju virusa
2. Lako deaktivira mikroorganizme otporne na klor kao što su cryptosporidium, giardia i pseudomonas
3. Veća učinkovitost protiv širokog spektra mikroorganizama
4.Svjetiljke srednjeg pritiska izuzetno su učinkovite u sprječavanju ponovnog stvaranja bakterija
Potrebno je manje UV lampi
1.Manje svjetiljki znači značajno smanjenje troškova održavanja
2. Optimizira sposobnost za točan nadzor svake pojedinačne lampe u stvarnom vremenu
3. U nekim slučajevima, 2 do 4 srednjeg tlaka svjetiljke mogu zamijeniti više od 50 niskotlačnih svjetiljki
Učinkovito u hladnoj i toploj vodi
Temperatura vode ne utječe na učinkovitost, za razliku od LP žarulja kod kojih na snagu žarulje utječe izvan njihove optimalne radne temperature
Značajke UV sustava srednjeg pritiska
UV lampe znanstveno optimizirane za vodu – Učinkovito uklanjaju klor i klor dioksid
Visokokvalitetni elektropolirani nehrđajući čelik SS316 i Super duplex materijali za korozivna okruženja – Do 30% uštede energije s unutarnjom refleksijom
PLC kontroler: Pruža korisniku informacije o performansama UV sustava i kontrolira napajanje lampi.
Dvostruka sigurnost od pregrijavanja:
Senzor UV intenziteta:
Ovaj instrument mjeri intenzitet (W/cm2) UV svjetla koje prolazi kroz vodu i dolazi do senzora.
Senzor temperature:
Ožičeni prekidač isključuje sustav pri visokim temperaturama, dok ugrađeni termoelement omogućuje mjerenje temperature na upravljačkoj ploči.
Automatski brisač: Automatski brisač se može koristiti za čišćenje kvarca bez potrebe za prekidom procesa obrade. Brisači se koriste u sustavima za prethodnu obradu vode i sustavima otpadnih voda gdje se mogu stvoriti krutine ili naslage kamenca. Brisači nisu potrebni nakon RO ili demineralizacije.
|
| ![]() |
OSNOVNE SPECIFIKACIJE
Model | Kapacitet | UV lampa | Ulaz/izlaz | Životni vijek lampe | Snaga svjetiljke |
SMP108 A1/2 | 15 t/sat | Srednji tlak | DN50 (2") | 8000 sati | 0.6kw |
PRINCIPI RADA
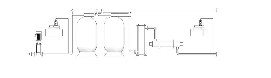
TIPIČNA PREPORUKA ZA UGRADNJU

PRIMJENE PROIZVODA
![]() | ![]() | ![]() | ![]() |
| Akvakultura | Elektronička poluvodič | Bazen | Farmaceutski industrija |
Pitanja
Q1: Koje su komponente uključene u UV kućište od nehrđajućeg čelika?
Školjka od nehrđajućeg čelika podijeljena je na glavnu cijev, krajnji poklopac, maticu, ulaz i izlaz vode itd.
Q2: Koje su vrste podnožja za naše UV lampe?
Grla najčešće korištenih UV lampi su G13 G5 G10Q
Q3: Kakvi su navoji naših UV kućišta?
Obično izrađujemo BSP navoje. U Sjedinjenim Državama općenito se koristi NPT, što je američki konac. Stoga je prije narudžbe potrebno potvrditi veličinu ulaza i izlaza te vrstu navoja koju kupac želi koristiti.
Q4:Koji je uobičajeni površinski tretman za naše UV kućišta?
Tretman pjeskarenjem (shot peening), tretman poliranja, elektropoliranje
Popularni tagovi: UV lampa srednjeg pritiska, Kina, proizvođači, tvornica, prilagođeno, veleprodaja, cijena, jeftino, na zalihama, proizvedeno u Kini
Mogli biste i voljeti
Pošaljite upit

























